Лестница на дачу на металлических тетивах с ограждениями
В стоимость входит: замер, проектирование, изготовление, монтаж, грунтование, окраска и материал.
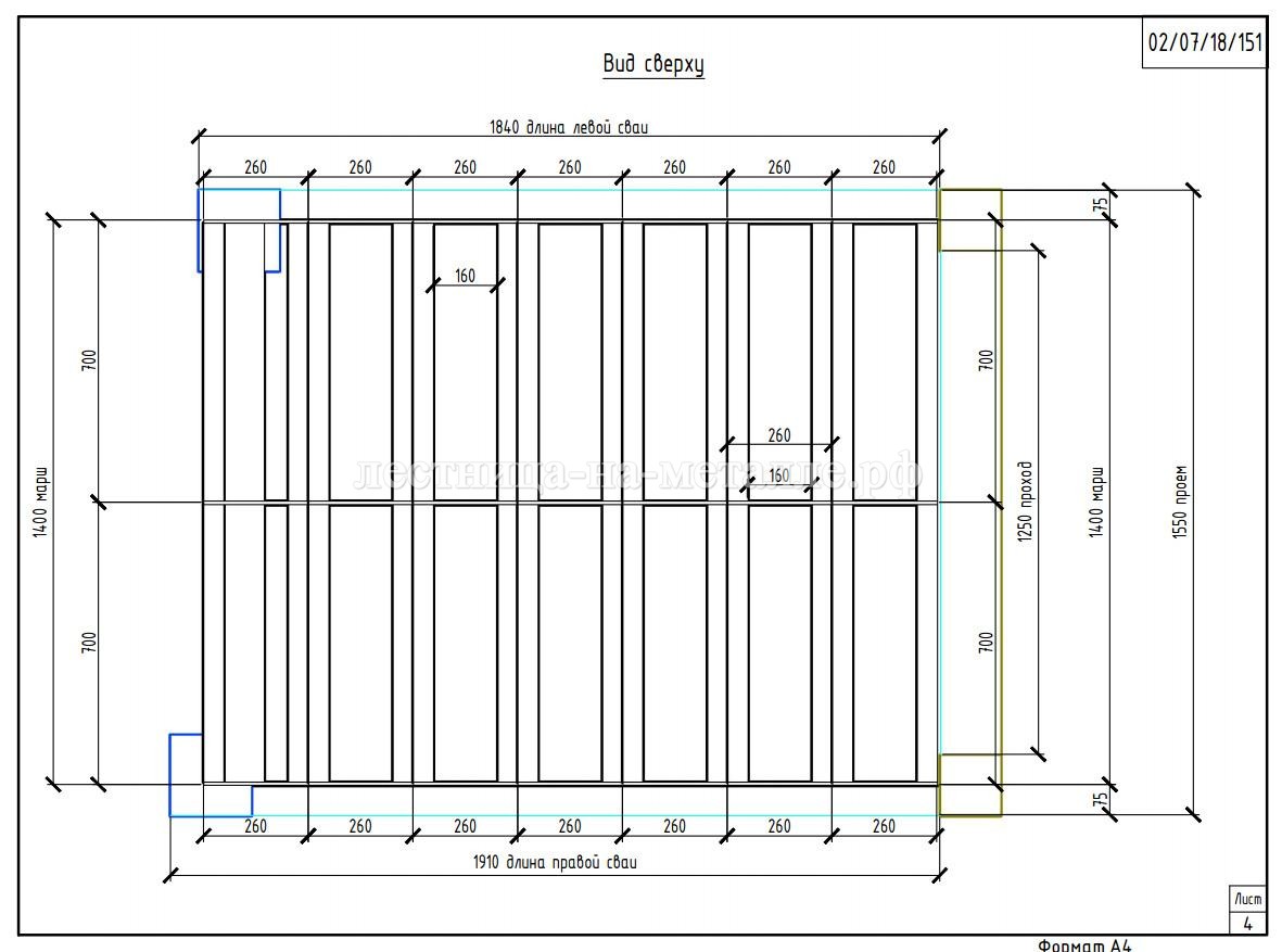
Довольно распространенная ситуация была на этом объекте. Первично была установлена деревянная лестница, которую заказчик пожелал заменить на более надежную – металлическую. Опорой для существующей деревянной лестницы служили винтовые сваи. Их можно использовать для фиксации металлического каркаса. Перекрытие террасы выполнено из бруса – к нему можно крепить ограждения. По периметру крыльца проходит швеллер, это оптимальный вариант для крепления каркаса, так как здесь можно использовать сварку.
На крыльце имеются две вертикальные колонны из бруса, к которым также можно крепить ограждение. Так как заказчик хотел видеть в своем доме аккуратную и современную конструкцию, мы предложили ему разработать проект лестницы на тетивах из листа металла. Для маршей такой ширины необходимо добавлять еще одну несущую, чтобы избежать прогибания конструктива. Лестница на металлических тетивах не выглядит громоздко, даже если она очень широкая.


Так как ко дню монтажа перекрытие террасы планировалось обшить плитой ЦСП, то в проекте предусмотрено отверстие, которое необходимо сделать в обшивке, чтобы выполнить сварку.
Заказчик одобрил предложенный проект и выбрал заполнение из нашего каталога кованных эелементов. Вся конструкция была выкрашена в шоколадный цвет RAL # 8017.


Производство каркасов лестницы из листового металла
Для производства каркасов из листа металла мы используем приобретенный в 2020 году программно-управляемый станок – плазморез ЧПУ. Плазморез выполняет фрагментацию листа металла с идеальной точностью на основе компьютерной программы, сгенерированной из графического файла. Эти файлы подготавливаются согласно проекту наших инженеров.
✓ ЧПУ плазморез выполняет раскрой аккуратно и без малейших погрешностей
Для данного проекта с помощью ЧПУ была выполнена раскройка тетив. Посмотрите как работает наш ЧПУ плазморез:
ЗЛМК