Монокосоур с ограждением из профильной трубы
В стоимость входит: замер, проектирование, изготовление, монтаж, окраска, отделочные работы и материал.
Наш инженер отправился на замер в КП Дали на Оке. Требовалось установить каркас на монокосоуре из профильной трубы с последующей отделкой деревом и установкой ограждений. Шахта для лестницы уже была готова. В полу заложены коммуникации, сверху плитка. Крепиться можно на жидкий гвоздь. К стенам, обшитым деревом, крепление выполнять не будем. Перекрытие из бруса, можно крепить каркас на глухари.
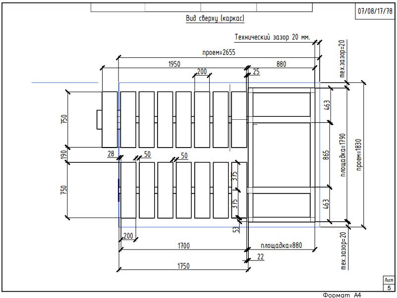
Наш инженер рассчитал монокосоур из 2 маршей с площадкой на напольной опорной конструкции. Заказчик одобрали проект и чертежи передали в производство. Окрашенные в устовиях цеха фрагменты конструкции были доставлены на объект для монтажа.


✓ Установка открытой лестницы под ключ выполняется в два этапа: производство и монтаж каркаса, а затем укладка ступеней и установка ограждений.
Для отделки ступеней и поручня заказчик выбрал лиственницу. Ограждения выполнены из профильной трубы и окрашены в белый цвет, как и металлическая основа лестницы. Ограждения крепятся к ступеням на саморезы.


ЗЛМК